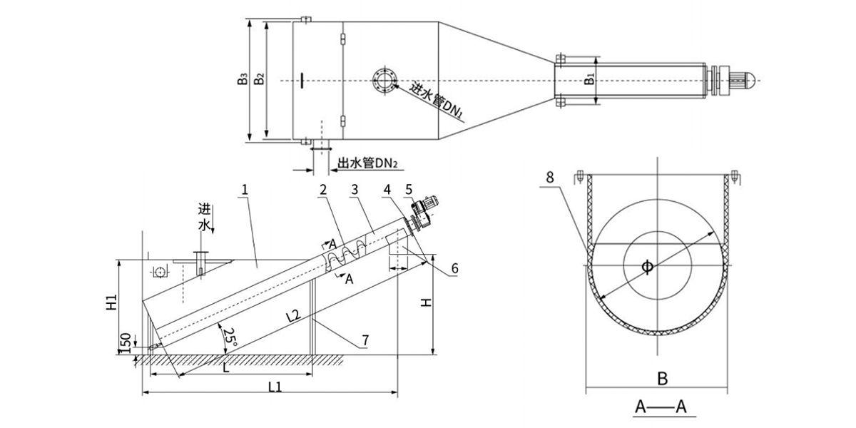
Sand Separator
The sand-water separator is suitable for sand removal in sedimentation tanks at municipal sewage treatment plants. It is primarily used in conjunction with cyclone sedimentation tanks, sand removal machines, or bridge-type suction sand collectors to further process the discharged sand-water mixture.
English 












